sábado, 28 de fevereiro de 2015

Desenhos Isométricos com CAD

Você sabe o que é um desenho isométrico?  Desenhos isométricos simulam um objeto 3D de um determinado ponto de vista, alinhando ao longo de três eixos principais.
Dentro dos programas de CAD, os desenhos Isométricos são amplamente utilizados na confecção de peças mecânicas e principalmente em representações de tubulações hidraulicas.
Para criar um desenho isométrico, precisamos ter um pouco de noção de desenhos tecnicos e de perspectivas, apenas para que possamos visualizar na mente o desenho tridimensional.


image
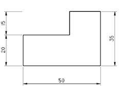
Esta é a visualização de um projeto isométrico através de suas vistas.
Precisamos ler e interpretar este modelo em suas diferentes vistas para podermos finalmente criar o nosso modelo em iso.





Dentro do CAD, também devemos fazer alguns pequenos ajustes.


image
Clique com o botão direito sobre a ferramenta “Polar Tracking” na Barra de Status e configure conforme mostrado ao lado.
Ative a Polar Tracking (F10), esta opção vai ativar uma linha pontilhada de auxílio no desenho.
Use o ângulo de 30º. Sempre que for fazer um desenho isométrico, devemos usar o ângulo de 30º.
Ative as opções conforme mostra o quadro ao lado.





Agora basta dar inicio ao desenho, sempre selecionando sua base como ponto inicial:
Observe que nosso modelo 2D tem a distância de 50, partindo da esquerda para a direita. Esta é a posição inicial de nosso modelo, partindo do ponto inical, encontrando o ângulo de 30º e seguindo a distância desejada.

image image


image
Por exemplo, cique em uma área do desenho e mova seu cursor até atingir o ângulo de 30º. Mova e digite a distância desejada.
Faça isso sempre que surgir a polar Tracking que te indica a posição correta dos ângulos.





image

Seguindo estas dicas, você pode criar sua forma isométrica.
Amanhã postaremos as dicas de utilização da Elipse com a configuração ISO para criação de tubulações.

0 comentários:

Postar um comentário

Tecnologia do Blogger.

Formulário de contato